Atpakaļ uz īpašumiem

Zigfrīda Annas Meierovica Bulvāris, Mūra, Dzīvoklis, Pirmskara, 146.3 m²

Zigfrīda Annas Meierovica Bulvāris, Centra rajons, Rīga, LV-1050, Latvija

Pārdod 395 000 € 146.3 m²

Apraksts

Pašā Rīgas sirdī pārdošanā tieši no īpašnieka tiek piedāvāts, trīsistabu dzīvoklis ar kopējo platību 146 kvadrātmetri ar visām ērtībām. Šis īpašums, kas atrodas piecstāvu ēkas ceturtajā stāvā, izstaro unikalitāti un izsmalcinātību, lepojoties ar satriecošu skatu uz Bastiona kalnu un pilsētas kanālu. Šī ir reta iespēja iegādāties nekustamo īpašumu vienā no skaistākajām Rīgas vietām – vēsturiskā ēkā, kas celta 1898. gadā pēc arhitekta J. D. Felsko projekta. Ēka ir 19. gadsimta eklektisma pērle, un dzīvoklī rūpīgi saglabāti autentiskie arhitektūras un dekoratīvie elementi. Dzīvokļa plašumu un gaišumu papildina augstie griesti, lieli logi un balkons ar burvīgu skatu uz parku. Dzīvoklī ir neatkarīga elektriskā apkure un augstas kvalitātes apdare, kas nodrošina komfortu un kvalitāti ikdienas dzīvē. Dzīvoklis ir sadalīts vairākās zonās: ieejas halle, plaša dzīvojamā istaba ar kamīnu un izeju uz balkonu, virtuves zona, viesu guļamistaba, viesu vannas istaba un otra galvenā guļamistaba ar vannas istabu un garderobi. Zeme ir īpašumā. Šajā īpašumā ir veikta kapitāla renovācija, visi projekti ir apstiprināti un saskaņoti, ko apliecina būvinspekcijā reģistrētā inventarizācijas lieta. Ja rodas jautājumi, lūdzu, sazinieties ar mums, izmantojot norādīto kontaktinformāciju.

Sīkāka informācija

Tips: Dzīvoklis
Statuss: Pārdod
Cena: 395 000 €
Istabas: 3
Platība: 146.3 m²
Stāvs: 4
Stāvu skaits: 5
Mājas tips: Mūra
Projekta tips: Pirmskara

Ērtības

Apkure: Elektriskie

Īpašuma video apskats

Video thumbnail
Atvērt video

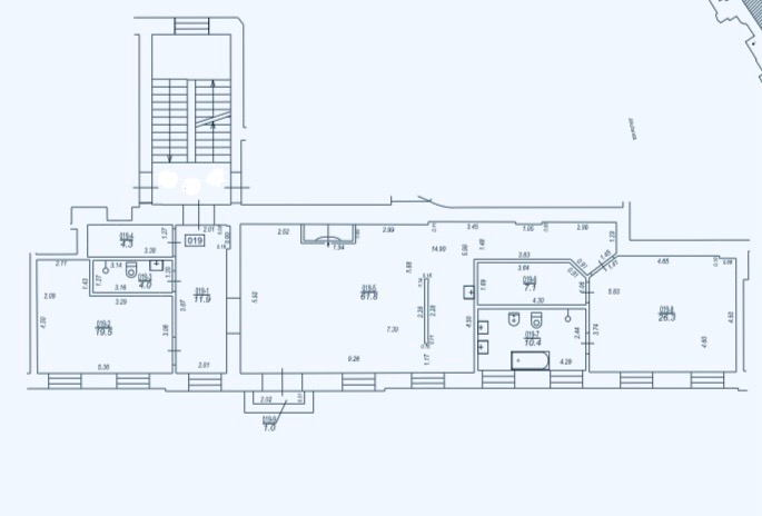
Īpašuma plāns