Atpakaļ uz īpašumiem

Brīvības iela, Ķieģeļu, Dzīvoklis, Staļina pr., 108.8 m²

Brīvības iela, Centra rajons, Rīga, Latvija

Pārdod 175 000 € 108.8 m²

Apraksts

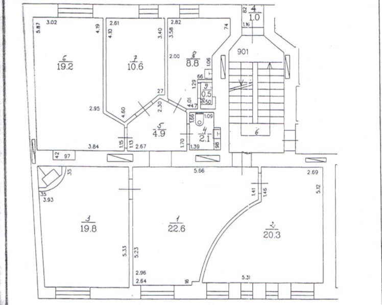
Piedāvājam pārdošanai piecistabu dzīvokli sešstāvu ēkas otrajā stāvā ar kopējo platību 108,8 kv.m, tieši no īpašnieka. Dzīvoklis ir renovēts un pilnībā atbilst būvinspekcijas noteikumiem. Īpašums ir sadalīts izmantojamās zonās: gaitenis, trīs istabas, kas vērstas uz Brīvibas iela, viena ar darbojošos kamīnu, divas pārējās istabas un virtuve ar logiem, kas vērsti uz pagalmu. Ir apvienota vannas istaba (dušas kabīne un tualete). Dzīvoklis atrodas pirmskara ēkā ar liftu, tīru ieeju ar koda atslēgu un domofonu. Ir uzstādīti radiatori, plastmasas logi, tērauda durvis, koka grīdas, santehnika un gāzes katls. Zeme zem ēkas ir īpašumā, un cenā iekļautas divas virszemes autostāvvietas pagalmā, kas ir atsevišķi reģistrētas. Komunālie maksājumi un īpašuma nodokļi ir zemi. Jautājumu gadījumā, lūdzu, rakstiet vai zvaniet uz zemāk norādīto kontaktinformāciju.

Sīkāka informācija

Tips: Dzīvoklis
Statuss: Pārdod
Cena: 175 000 €
Istabas: 6
Platība: 108.8 m²
Stāvs: 2
Stāvu skaits: 5
Mājas tips: Ķieģeļu
Projekta tips: Staļina pr.

Ērtības

Lifts:
Apkure: Gāze

Īpašuma video apskats

Video thumbnail
Atvērt video

Īpašuma plāns