Atpakaļ uz īpašumiem

Kaivas iela 50 k-2, Paneļu, Dzīvoklis, Jaunais projekts, 38 m²

Kaivas iela 50 k-2, Vidzemes priekšpilsēta, Rīga, LV-1021, Latvija

Rezervēts 440 € 38 m²

Apraksts

Jaunajā "Kaivas Residential" projektā piecstāvu ēkas ceturtajā stāvā ilgtermiņa īrei pieejams divuistabu dzīvoklis ar kopējo platību 38 kv.m. Dzīvoklis ir sadalīts zonās: ieejas halle ar iebūvētu skapi, apvienota vannas istaba (duša) ar veļas mašīnu un žāvētāju, studijas tipa virtuve un guļamistaba. Dzīvoklis ir aprīkots ar visu nepieciešamo sadzīves tehniku ​​un mēbelēm, Zemi komunālo pakalpojumu rēķini. Mājdzīvnieki ir atļauti. Jautājumu gadījumā, lūdzu, rakstiet vai zvaniet, izmantojot WhatsApp. Video, plāns un komunālo pakalpojumu rēķini ir pieejami uzņēmuma tīmekļa vietnē.

Sīkāka informācija

Tips: Dzīvoklis
Statuss: Izīrē/Iznomā
Cena: 440 €
Istabas: 2
Platība: 38 m²
Stāvs: 4
Stāvu skaits: 5
Mājas tips: Paneļu
Projekta tips: Jaunais projekts

Ērtības

Lifts:
Apkure: Gāze

Īpašuma video apskats

Video thumbnail
Atvērt video

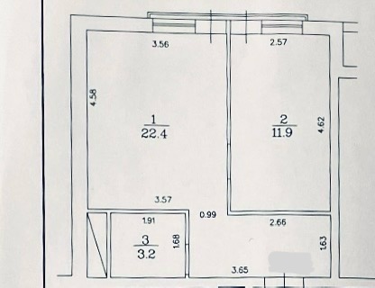
Īpašuma plāns