Atpakaļ uz īpašumiem

Indrānu iela, Paneļu, Dzīvoklis, Jaunais projekts, 100 m²

Indrānu iela, Vidzemes priekšpilsēta, Rīga, LV-1012, Latvija

Izīrē 1200 € 100 m²

Apraksts

Tiek piedavats uz ilgetermiņa ire. Dzīvoklis ar pilnu apdari, mēbelēm un kvalitatīvu tehniku.
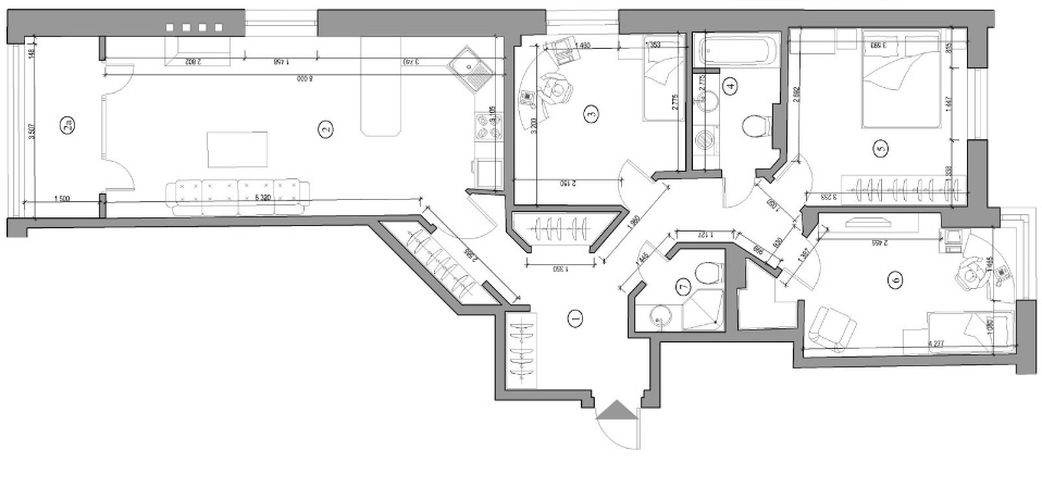
Ideālā stāvoklī. 100 kv.m. Trīs izolētas istabas, plaša viesistaba apvienota ar virtuvi, 2 sanmezgli-ar dušu un vannu.
No dzīvojamās istabas ir izeja uz balkonu. Ir kamīns. Laba skaņas izolācija. Dzīvoklis ir klusa, saulaina.
Logi vērsti uz 3 pusēm. Pazemes stāvvietā vieta 1 mašīnu. Klusi kaimiņi. Sekojot saitei uz tīmekļa vietni,
varat noskatīties video apskati, apskatīt stāvu plānu un redzēt komunālo pakalpojumu rēķinus ziemai un vasarai.

Sīkāka informācija

Tips: Dzīvoklis
Statuss: Izīrē/Iznomā
Cena: 1200 €
Istabas: 4
Platība: 100 m²
Stāvs: 4
Stāvu skaits: 5
Terases platība: 6 m²
Mājas tips: Paneļu
Projekta tips: Jaunais projekts

Ērtības

Apkure: Gāze

Īpašuma video apskats

Video thumbnail
Atvērt video

Īpašuma plāns